
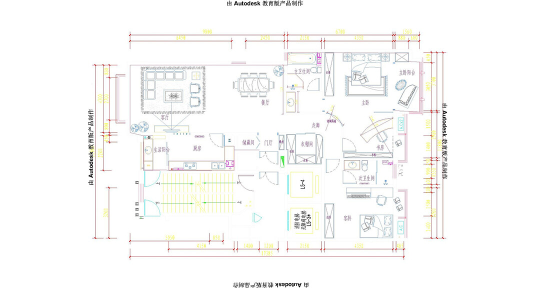
曉港名城146㎡三室一廳戶型布置圖

曉港名城146㎡三室一廳客廳電視新中式風(fēng)格裝修案例效果圖

曉港名城146㎡三室一廳客廳新中式風(fēng)格裝修案例效果圖

曉港名城146㎡三室一廳客廳新中式風(fēng)格裝修案例效果圖

曉港名城146㎡三室一廳客廳新中式風(fēng)格裝修案例效果圖

曉港名城146㎡三室一廳書房新中式風(fēng)格裝修案例效果圖

曉港名城146㎡三室一廳餐廳新中式風(fēng)格裝修案例效果圖

曉港名城146㎡三室一廳餐廳新中式風(fēng)格裝修案例效果圖

曉港名城146㎡三室一廳臥室新中式風(fēng)格裝修案例效果圖