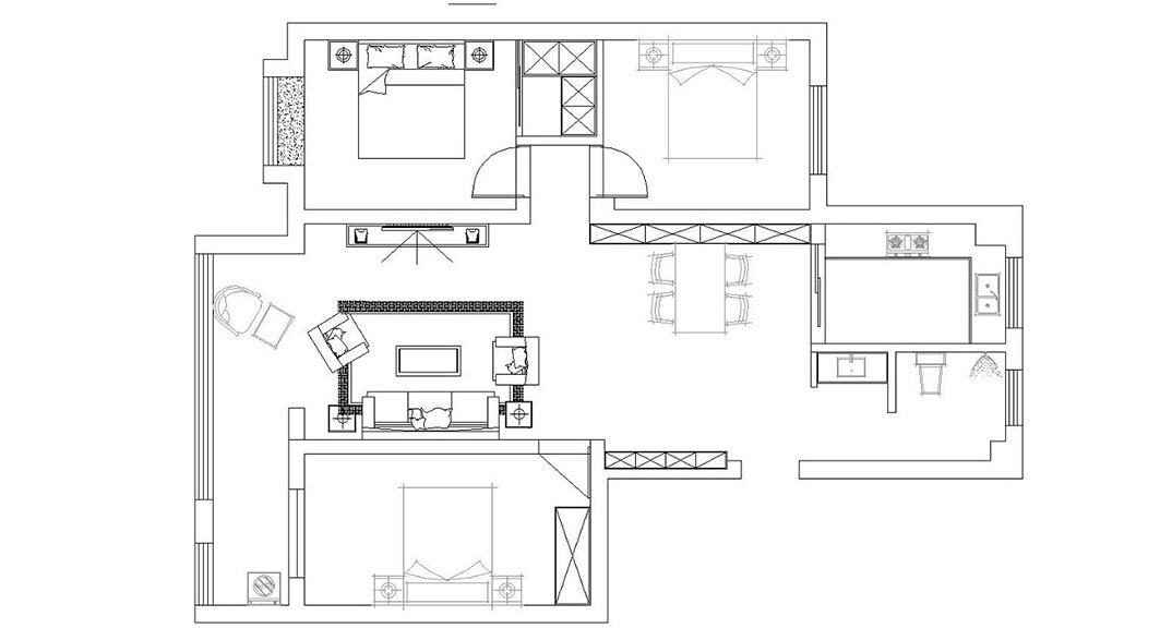
裕升華庭123㎡三室兩廳戶(hù)型平米布局圖
裕升華庭123㎡三室兩廳客廳美式風(fēng)格裝修案例效果圖
裕升華庭123㎡三室兩廳客廳美式風(fēng)格裝修案例效果圖
裕升華庭123㎡三室兩廳餐廳美式風(fēng)格裝修案例效果圖
裕升華庭123㎡三室兩廳走廊美式風(fēng)格裝修案例效果圖
裕升華庭123㎡三室兩廳主臥美式風(fēng)格裝修案例效果圖
裕升華庭123㎡三室兩廳次臥美式風(fēng)格裝修案例效果圖
