
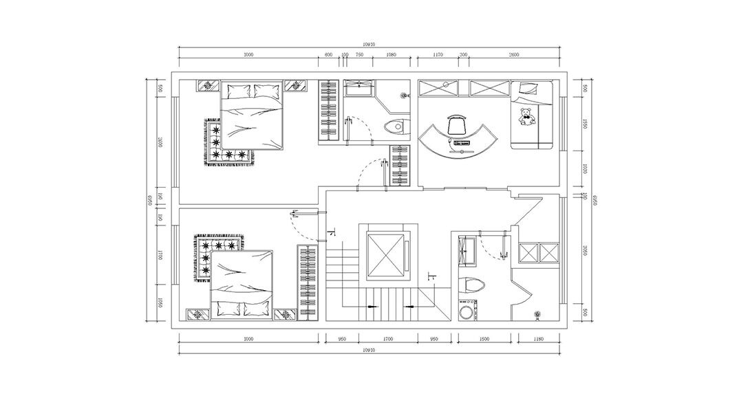
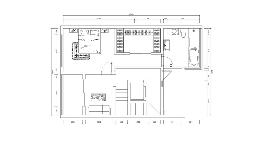
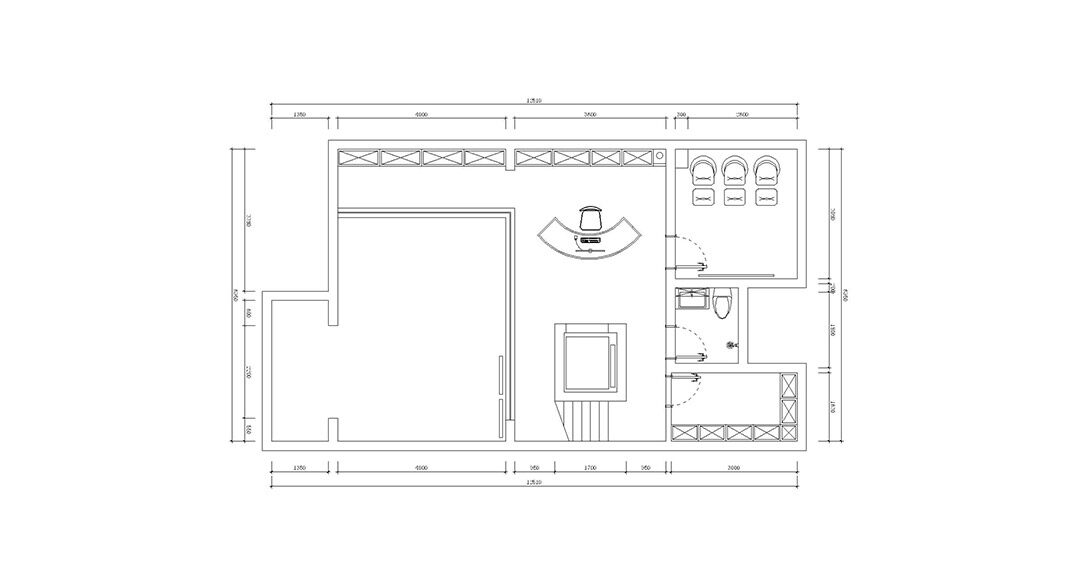
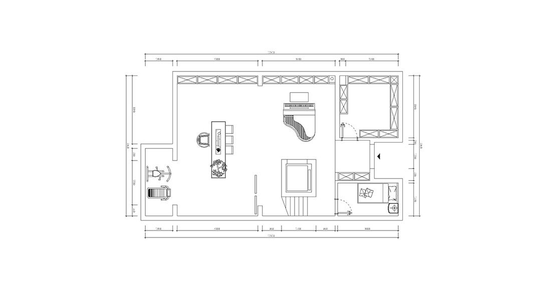
九里風(fēng)華478㎡別墅平面布局圖

九里風(fēng)華478㎡別墅平面布局圖

九里風(fēng)華478㎡別墅平面布局圖

九里風(fēng)華478㎡別墅平面布局圖

九里風(fēng)華478㎡別墅平面布局圖

九里風(fēng)華478㎡別墅一樓客廳法式風(fēng)格裝修案例效果圖

九里風(fēng)華478㎡別墅一樓餐廳法式風(fēng)格裝修案例效果圖

九里風(fēng)華478㎡別墅一樓廚房法式風(fēng)格裝修案例效果圖

九里風(fēng)華478㎡別墅一樓衛(wèi)生間法式風(fēng)格裝修案例效果圖

九里風(fēng)華478㎡別墅二樓主臥法式風(fēng)格裝修案例效果圖

九里風(fēng)華478㎡別墅二樓兒童房法式風(fēng)格裝修案例效果圖

九里風(fēng)華478㎡別墅二樓書(shū)房法式風(fēng)格裝修案例效果圖

九里風(fēng)華478㎡別墅二樓書(shū)房法式風(fēng)格裝修案例效果圖

九里風(fēng)華478㎡別墅三樓主臥法式風(fēng)格裝修案例效果圖

九里風(fēng)華478㎡別墅三樓次臥法式風(fēng)格裝修案例效果圖

九里風(fēng)華478㎡別墅三樓衛(wèi)生間法式風(fēng)格裝修案例效果圖

九里風(fēng)華478㎡別墅三樓陽(yáng)光房法式風(fēng)格裝修案例效果圖

九里風(fēng)華478㎡別墅地下書(shū)房法式風(fēng)格裝修案例效果圖

九里風(fēng)華478㎡別墅地下影音室法式風(fēng)格裝修案例效果圖

九里風(fēng)華478㎡別墅法式風(fēng)格裝修案例效果圖